Titel:
Kompetenzen und Karrierewege in elektrotechnischen und metalltechnischen Berufen
Beitrag von Heinz DIEKMANN (Technische Universität Hamburg-Harburg)
Eine neue Art, über Probleme des schulischen Übergangs nachzudenken, hat sich auf dem Hintergrund langjähriger Erfahrungen mit Schülern ohne Hauptschulabschluss an der Gewerbeschule Metalltechnik in Hamburg-Wilhelmsburg entwickelt. Reforminitiativen zur Gestaltung der Inhalte der Übergänge zwischen allgemeinbildenden und beruflichen Schulen sind vordringlich, weil es oft an der angemessenen Thematik und der zugehörigen Komplexität fehlt, obwohl es den Fähigkeiten und Möglichkeiten vieler Schüler entspräche. Wir müssen sie auf neuen Wegen zum Einstieg in eine passende Ausbildung motivieren und befähigen. Als zentrale Idee wird hier das Zeichnungslesen als nachhaltige „Kernkompetenz“ der Techniklehre und der technischen Berufe vorgestellt. Das Konzept wird durch Erkenntnisse der Hirnforschung gestützt und über bewährte Beispiele konkretisiert. Anhand von Zeichnungen aus der Praxis lässt sich das Interesse für technische Berufe wecken. Neue Aufgabentypen werden nach dem Prinzip der Mehrfachkodierung entwickelt. Medien sind vorrangig komplexe Technische Zeichnungen im größeren Format (A2, A3) in Verbindung mit realer Technik als Lernträger sowie deren Bearbeitung am Bildschirm. Der Autor vertritt und begründet hier die Auffassung, dass die Technische Kommunikation an allgemeinbildenden Schulen auch durch Erhöhung sprachlicher Anteile zu verbessern ist, um Übergänge in die Berufswelt zu ermöglichen und zugleich dem Fachkräftemangel entgegenzutreten. Das gilt ebenso für Schüler mit einem Migrationshintergrund.
Der folgende Beitrag stellt eine schulartenübergreifende Zusammenarbeit zwischen allgemeinbildenden und beruflichen Schulen im Bereich der Technischen Kommunikation (TK) mit dem Schwerpunkt „Zeichnungslesen“ vor. Es geht dabei um Jugendliche, deren Erfolgsaussichten bei der Suche nach einem Ausbildungsplatz aus unterschiedlichen Gründen gering sind. Das betrifft sowohl weniger leistungsfähige Schüler im Allgemeinen wie solche mit Migrationshintergrund im Besonderen, deren bisheriger Bildungsweg aus unterschiedlichen Gründen nicht immer glatt verlaufen ist. Wir müssen diesen Schülern eine Ausbildung auf passendem Anspruchsniveau ermöglichen und über noch nicht genutzte Wege ihre Chancen verbessern. Dazu kann die Technische Kommunikation einen Beitrag leisten.
Im Zusammenhang damit steht der zweite Gesichtspunkt: der zu erwartende Fachkräftemangel. Zahlen und Entwicklungen sind bekannt und in ihrer Aussage eindeutig: Es gibt nach den Daten der Arbeitsagentur in 2011 ca. eine halbe Mio. offene Stellen (StatBA 2011), gleichzeitig sind jährlich 150.000 junger Menschen ohne Ausbildung (BERTELSMANNSTIFTUNG 2011). In den technischen Berufen in Handwerk und Industrie ist aber auch in Zukunft mit guten Arbeitschancen zu rechnen. Eine gängige These ist: „Bildung ist die beste Beschäftigungspolitik“. Wer Fachkräfte haben will, muss investieren. Inzwischen werden schon reine Ausbildungsfirmen gegründet, und in vielen technischen Berufen macht sich der Mangel bemerkbar. Besonders schwer hat es das Handwerk, weil Lehrstellen nicht mehr besetzt werden können. Auf der anderen Seite haben sich durch die neuen zweijährigen Ausbildungsberufe die Möglichkeiten für weniger leistungsfähige Schüler erweitert. Auch bietet sich in technischen Berufen eine Vielzahl kaum bekannter Varianten an wie z. B. die Fachkraft Lagerlogistik, oder auch spezielle Segmente im Reparatur- und Instandhaltungssektor.
Der Fachkräftemangel fordert aber nicht nur die Wirtschaft heraus, sondern auch die Schulpolitik, die inzwischen reagiert. Das gibt Anlass, realisierbare Maßnahmen anzuregen. Sicher sind einzelne Anforderungs-Segmente als Voraussetzung für die Eignung zur Berufsausbildung zu überprüfen und ggf. zu verändern. (Muss denn wirklich jede Fachkraft eine ganze Zahl durch einen Doppelbruch dividieren können?) Erkennbare Alternativen sollen hier entwickelt und konkretisiert werden.
Die mögliche „Zukunft der Arbeit“ verlangt u. a. Fähigkeiten zur Informationsgewinnung, um sich den sich verändernden Inhalten und Arbeitsformen anpassen können. Implizit sind diese in der Kompetenz zur technischen Kommunikation enthalten. Der Bereich Technische Kommunikation bietet sich auch deshalb an, weil er eine besondere Affinität zur Ausbildung in technischen Berufen hat, und weil hier nach vorliegenden Erfahrungen besonders motivierende Faktoren, aber auch eine Ausrichtung auf Orientierungs- und Überblickwissen eine Rolle spielen. Langjährige Unterrichtspraxis im Übergangssystem zwischen den Schularten hat gezeigt, dass es hier noch ungenutzte Potenziale gibt. (DIEKMANN 2010) Der Unterricht in TK ermöglicht die persönliche Zuwendung des Lehrers zum Einzelnen, weil die Mehrheit der Schüler beim neuen Zeichnungslesen schnell lernt, relativ selbständig und motiviert zu arbeiten, und in Partnerarbeit auch komplexe Zeichnungen versteht. Die unterschiedliche Lerngeschichte aller Schüler ist oft Auslöser besonderer Lernerfolge, kann diese aber auch verhindern. Neue Ideen werden in Verbindung von technischen Objekten und ihren Zeichnungen vorgestellt und mit neuro-didaktisch erklärbarem Vorgehen verbunden: Weil jede Zeichnung auch Textelemente enthält, verbinden Sprache und Zeichnung durch serielles und paralleles Vorgehen zwei mentale Leistungen. (SPITZER 2006)
Der Autor vertritt und begründet in diesem Beitrag die Meinung, dass die Fachdidaktik zur Technischen Kommunikation an allgemeinbildenden Schulen neu durchdacht werden muss. Künstliche Warteschleifen erfordern nicht nur politisches Eingreifen, sondern auch didaktische Kompetenz der beteiligten Schulen, was über eine (noch nicht geklärte) Warte-Schleifen-Didaktik hinausgehen muss. In einem neuen Anlauf zur TK dürfen sich die im beruflichen Schulwesen aufgetretenen Defizite und Fehlorientierungen nicht wiederholen.
Neues Lernen in der TK kann im Kontext technischer Realität und durch eine motivierende Verzahnung von Theorie und Praxis weiterführen. In fast allen technischen Berufen hat die TK mit dem Schwerpunkt Zeichnungslesen eine höhere Qualität als die innerfachlichen Inhalte, weil für die TK langfristig kaum Veränderungen zu erwarten sind (vgl. DIEKMANN 2006). TK ist als nachhaltige Disziplin lebenslang und für lebenslanges Lernen bedeutungsvoll. Deshalb ist für den Schwerpunkt Zeichnungslesen von einer umfassenden Definition auszugehen: „Zeichnungslesen ist das planmäßige, selbständige und am beruflichen Handeln orientierte Durcharbeiten technischer Zeichnungen mit dem Ziel, Formen, Funktionen und Zusammenwirken der Einzelteile zu verstehen, um damit berufliches Handeln zu ermöglichen….“ (DIEKMANN 1983, 5). Es kommt darauf an, sich gegen einen abgeschwächten und praxisfernen Begriff ‚Zeichnungslesen’, und gegen didaktische Fehlorientierungen wie das Multiple-Choice-Format abzugrenzen. Lesen und Verstehen von Gesamtzeichnungen verlangt in der Sprache der Hirnforschung bspw. die Suche nach Beziehungen zwischen Elementen und Relationen, wie Form und Lage oder Funktionen von Bauteilen. Dies kann mit neuen Aufgabentypen und besonders durch ein Strukturnetz für die Baustruktur erreicht werden. (Beispiel „Hebelschere“ in DIEKMANN 1996a, 68).
Wenn Schüler in der Berufsvorbereitungsklassen fragen: „Machen wir heute kein Strukturnetz?“ denkt man darüber nach, dass viele Lehrer und Dozenten das Strukturnetz zur Baustruktur technischer Geräte mit seinem sehr hohen Lernpotenzial überhaupt nicht kennen, obwohl es selbst für Schüler mit scheinbar geringen Lernvoraussetzungen ein sehr lohnenswertes Lernobjekt ist.
Wie man Teilzeichnungen liest, lernt man sinnvoller Weise über direktes berufliches Handeln: Planen-Fertigen-Kontrollieren, also durch die in der Schulwerkstatt oder in der Ausbildungspraxis übliche Arbeitsplanung; solche Erfahrungen sind auch für den späteren Zeichenunterricht hilfreich.
Theoretische Abhandlungen bieten selten Anregungen für die konkrete Umsetzung in die Praxis. Deshalb wird hier für den Übergang zwischen Schulsystemen und Ausbildungsbeginn der Praxisbezug betont. Neue und erprobte Beispiele aus konkreten Unterrichtsvorhaben sind in der Fachdidaktik Eckpfeiler der Theorie. Die verwendeten Beispiele haben ihren Ursprung in überraschenden Befunden positiver Reaktionen der Schüler, die in langjähriger Praxis bestätigt wurden und deren Potenzial nicht immer richtig eingeschätzt wird. Zu dem didaktischen Ansatz gehört die Entwicklung der Mehrfachkodierung. Das Zusammenwirken neuer Ideen wird zur Einführung an einem Kastenschloss verdeutlicht. Das Gesamtkonzept beruht auf einem konstruktivistischen Ansatz (DIECKMANN 1999), gestützt durch aktuelle Ergebnisse der Hirnforschung. Wissenschaftlich Erkenntnisse werden in diesem Beitrag nicht immer auf einzelne Forscher bezogen. Weiterführende Literatur wird im Literaturverzeichnis ausgewiesen.
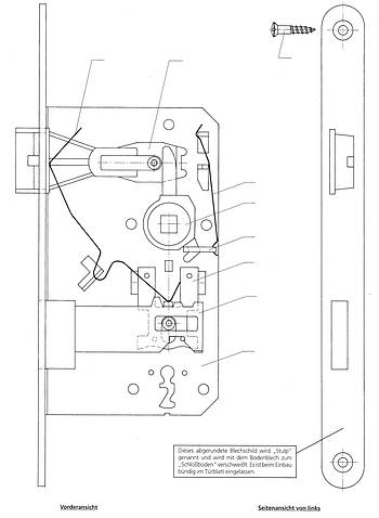
An der unteren Grenze von Komplexität zum Zeichnungslesen kann man das abgebildete Kastenschloss nach Abb. 1 und 2 einsetzen. Es ist (fast) jedem aus seiner persönlichen Umwelt bekannt und eignet sich für den Umgang mit sinnvollen neu entwickelten und erprobten Lernaufgaben, um Technik in Raumvorstellung und Funktionen zu verstehen und durch Verbindung beider zu sinnvollen Erkenntnissen zu kommen. (DIEKMANN 1996a) Je zwei oder drei Schüler bekommen ‑ in Einzelteile zerlegt ‑ ein Kastenschloss. Es ist für Klassenraum oder Werkstatt ein geeigneter Lernträger: Zuerst lassen sich die ungeordneten Einzelteile zu Schlössern montieren und zum Abschluss mit dem beiliegenden Schlüssel auf ihre Funktion überprüfen. Hier verbinden sich mentale innere und praktische äußere Handlungen. Es ist für den Beobachter interessant, die Ergebnisse von Denkschritten - auch mit allen Irrwegen - zu beobachten und angemessene Impulse zu geben.
Abb. 1: Kastenschloss als Explosionszeichnung (DIEKMANN 1996a, 6)
Das dauert in der Regel etwas länger, sorgt aber für hohe Motivation – auch angesichts vieler Fehlversuche einzelner Kleingruppen. Irgendwann haben alle ihr Schloss erfolgreich montiert. Wenn jetzt die dazugehörige TZ verteilt wird, kommt oft der Ausruf: „ Warum haben Sie uns die Zeichnung nicht gleich gegeben?“
Damit ist ein erstes Ziel erreicht: Der Sinn einer Technischen Zeichnung wird verstanden. Nun können weitere Aufgaben zur TK gelöst werden wie Zuordnen der Perspektivbilder zur Gesamtzeichnung im A3 Format, Übertragen der Positionsnummern aus der Stückliste in die Ansichten, Anlegen der beweglichen Einzelteile in unterschiedlichen Farben und Eintragen von Pfeilen für Bewegungsart und -richtung zu den Funktionen von Einzelteilen. Ähnliche Aufgaben ‑ Demontage und Remontage eingeschlossen ‑ können an der Bohrmaschine (Abb. 3) gestellt werden.
Abb. 2: Kastenschloss in Ansichten (Diekmann 1996a, 8)
Die meisten Jugendlichen kennen Bohrmaschinen; deshalb bietet es sich an, eine Maschine in Aufbau und Funktion anhand einer Gesamtzeichnung als Explosionszeichnung zu erkunden und so elementare Bauteile und ihre Form und Lage zu analysieren. Wer hiermit im Unterricht Erfahrungen macht, kann bestätigen, dass sich technische Komplexität weitaus früher als bisher angenommen für den Unterricht bei jüngeren Schülern eignet. Anhand von Textaufgaben werden weitere Denkschritte gefordert, in technische Darstellungen einzudringen und Komplexität aufzulösen, was vielfach für rege Diskussionen sorgt. Eine interessante Grundidee der Montagetechnik ist die Frage, ob Demontage und Remontage umkehrbar sind. Natürlich stimmt das nicht (vgl. HERKNER/ MERSCH/ PAHL 2010, 186 ff). Das Beispiel Kastenschloss, von dem wir ausgegangen sind, ist nur exemplarisch zu sehen, sicher gibt es, wie die Bohrmaschine zeigt, viele Alternativen mit ähnlichen didaktischen Ansätzen. (Zur Beschaffung didaktischer Materialien s. Abschnitt 10)
Abb. 3: Explosionszeichnung einer Säulenbohrmaschine (Diekmann 1996b, 55)
Die Beispiele sind hier die Eckpfeiler einer didaktischen „Theorie“. Sie sorgen in der TK für die erforderliche Theorie-Praxis Verzahnung. Die Detailkomplexität des herkömmlichen technischen Zeichnens ist in diesem Sinn eine didaktische Fehlorientierung. Der ganzheitliche Ansatz verwendet elementares anstelle von elementhaftem Technikwissen, d. h. Einzelteile werden grundsätzlich nicht mehr im kontextleeren Raum, sondern im Rahmen vollständiger Objekte behandelt. Dabei kommen wir vom Problem zum System, aber noch nicht zur Systematik. Elementare Beispiele zur TK mit einer Mindestkomplexität von 20 Einzelteilen, die Aufbau und Funktion technischer Geräte erklären, haben bereits Aufforderungscharakter, wenn sie im Kontext von technischer Praxis oder Lebenserfahrung stehen. Die Verwendung von Zeichnungen aus Handwerk und Industrie im Unterricht wurde bereits im Jahre 1911, also vor genau 100 Jahren, von Fachleuten gefordert (DATSCH 1911, 133). Technische Inhalte können in Zeichnungen zwischen bottom up und top down als mentale Repräsentation vermittelt und gefestigt werden. Das kann für die Auflösung von Komplexität anhand technischer Zeichnungen auf zwei Wegen geschehen: Jeder Schüler kann für sich entscheiden, ob er vom Zusammenhang der Ansichten untereinander ausgeht oder das Zeichnungslesen mit dem Erkennen von Einzelteilen beginnt. Was heißt nun bottom up und top down?
Bottom up or top down ist eine relativ neue Betrachtungsweise, wie sie bspw. im Zusammenhang mit den neuronalen Pyramiden in der Hirnforschung verwendet wird. Es gibt Strukturanalogien für das Lernen: Bottom-up-Klassifikationen und top-down-Sequenzen stehen im denkenden Gehirn in ständiger Wechselwirkung und verändern sich zeitlebens. Das ist das Wesen des Lernens. (Die bottom-up-Strategie kann man vereinfacht ausdrücken als „auf den Kern der Sache kommen“). Analog lassen sich in der TK Begriffe für Lernprozesse als Verbindungsrichtungen up or down zwischen den Darstellungsebenen deuten. Beim Zeichnungslesen gibt es so zwei prinzipiell unterschiedliche Wege: Man kann integrierend von den Einzelteilen zum Ganzen vorgehen oder differenzierend vom Ganzen ins Detail kommen (entwickelt in DIEKMANN, 1983). Die aktuelle Hirnforschung beschreibt und begründet diese zwei Möglichkeiten, und kann erklären, dass sich durch up and down-Prozesse die Architektur des Gehirns ständig verändert (nach SPITZER 2004).
Ebenfalls bilden Beispiele einen zu wenig beachteten didaktischen Ansatz. Neue Aufgabentypen und ihre Verbindung als Mehrfachkodierung können aber Lernprozesse über Beispiele intensivieren. Auch das „Priming“[1] trägt nach Erkenntnissen der Hirnforschung durch unbewusstes Lernen zum Lernfortschritt bei (s. Abschnitt 7.3). Zeichnungslesen soll auch technische Problemlösungen vermitteln, was im weiteren Bildungsgang nützlich sein kann. Wer sich bspw. vor Eintritt in eine Berufsausbildung mit einer Vielzahl von Problemen und ihren Lösungen auseinandergesetzt hat, ist auf nachfolgendes Lernen besser vorbereitet. Das gilt auch für den Einstieg in die CAD-Arbeit. Beispiele zeigen, dass Netzwerke des Gehirns auch als mentale Werkzeuge dienen. Entscheidend ist: Wer für sich Aufgabentypen entdeckt, die seinen Möglichkeiten entsprechen und mit denen er Komplexität auflösen kann, baut im Zeichnungslesen eine individuelle Lernstrategie auf. Erworbene Netzwerke im Gehirn dienen so als mentale Werkzeuge.
Beispiele aus technischer Praxis motivieren und unterstützen neues Lernen. Das setzt jedoch voraus, dass es Technische Zeichnungen mit der erforderlichen Komplexität für die Schüler gibt und dass sie diese Zeichnungen auch behalten dürfen - erfahrungsgemäß ein nicht zu unterschätzender Faktor für die Mitarbeit und Motivation. Die Kosten für solche Zeichnungen sind gering und sind im Schuletat leicht unterzubringen (A3-Format ist am schuleigenen Drucker kopierfähig, A2-Zeichnungen bekommt man aus Verkleben von A3-Zeichnungen!).[2]
Ein Höhepunkt bei Schülern in „Übergängen“ ist immer wieder der Einsatz eines Kolbenkompressors mit 83 Einzelteilen. Motivierende Aufgaben zum Zeichnungslesen auf A2-Zeichnungen bieten nicht nur inhaltlich Neues wie typische KFZ-Bauteile und KFZ-Funktionen, sondern können das Interesse vieler Schüler an technischen Berufen wecken. Dieses und ähnliche Beispiele können auf der Suche nach einem Ausbildungsberuf hilfreich sein, wenn auf Mehrfachkodierung und interessante technische Inhalte gesetzt wird. (Ausführliche und kopierfähige Unterlagen in DIEKMANN 2000, 60-75.) Aus einer Vielzahl möglicher und erprobter Beispiele zur TK können hier nur wenige ausgewählt werden.
Zeichnerische Darstellungsebenen (Präsentationsmodi) in der Technik sind qualitativ aufgeteilt in Oberflächen- und Tiefenstrukturen, sie sind auch graduell oder prinzipiell nach ihrer Komplexität unterscheidbar (Tab. 1) und können analog zur Vernetzung von Arealen im Gehirn „Alles mit allem“ verbinden. Das ermöglicht anschauliche oder symbolische Kommunikation [haptisch, bildhaft, bildhaft-schematisch, rein schematisch, rein symbolisch], sowie Beschreibungen von Beschreibungen, als Meta-Repräsentationen. Aus didaktischer Sicht lässt sich sogar das rein Symbolische, d. h. das nicht Sichtbare sichtbar machen, indem bildhafte Ergänzungen nicht nur in Schnittzeichnungen (vgl. Abb. 4), sondern auch in Ketten, Netzen oder Bäumen deren Strukturen anschaulich vermitteln (Beispiel: Kulissenführung, DIEKMANN 1996a, 100 ff). Die Inhalte sind in unterschiedlichen ‚Karten’ des Gehirns gespeichert; sie sind bei der mentalen Verarbeitung über die Sprache und Fachsprache vernetzt, deshalb ist der erhöhte Anteil von Sprache in der TK entscheidend für alle technischen Bildungs- oder Ausbildungsgänge. Die Summe der Darstellungen technischer Objekte entspricht einem Netz, das alle technischen Berufe als Kommunikationsmittel überzieht. Ein Beispiel ist die Schemazeichnung: Sie lässt sich – wie am Beispiel Kastenschloss gezeigt wird – auch in Übergängen zwischen den Schulformen einführen.
Tabelle 1: Übersicht über die Darstellungsebenen der Technischen Kommunikation (vgl. DIEKMANN 2010, 117)
Zeichnungslesen sollte auch neue technische Inhalte vermitteln. Weil alle zu zeichnenden Inhalte in bestehende neuronale Netze integriert werden, müssen solche Netze erst einmal aufgebaut werden. Das erforderliche grundlegende Technikwissen ist z. T. über das einführende Zeichnungslesen in Verbindung mit kleinen Skizzen vermittelbar, was sich direkt auf die Praxis bezieht. Deshalb gelten das Zeichnungslesen und das aktive Zeichnen auf Papier oder am Bildschirm als eine mentale Einheit, aber nur wenn Zeichnungslesen auch neue technische Inhalte anbietet oder vorhandenes Wissen vertieft. Beim technischen Zeichnen lassen sich heute räumliches Vorstellen und mathematische oder systemische Grundlagen integriert vermitteln, so kann die Darstellung in der Sechstafelprojektion diesen neuen Weg erleichtern (vgl. DIEKMANN 1996a, 30 ff). Die Konstruktion über zwei sich kreuzende Parallelenpaare macht es auch möglich, die aus dem 19. Jhdt. stammenden „Drei Ansichten“, die in der Praxis selten vorkommen, zu überwinden. Was vormals als eine überflüssige Darstellung verstanden wurde, erweist sich unter heutigen Erkenntnissen als Vorteil: Redundanz ist aus didaktischer Sicht auch fördernde Redundanz. Wird eine Information mehrfach aber mit unterschiedlichen Mitteln angeboten, erhöht sich in der TK der Erkenntniswert von Sachverhalten oder Problemlösungen. Damit werden auch Vorkenntnisse und Lerngeschichte der Schüler berücksichtigt. Das gilt sowohl für die Mehrfachkodierung als auch für das Zeichnen und Skizzieren. Zur Mehrfachkodierung liegen Erfahrungen mit einer großen Zahl von Beispielen vor. Aus einer Vielzahl möglicher und erprobter Beispiele zur TK werden hier nur wenige exemplarisch angeführt (Auf einige Lehrbücher zur TK weist das Literaturverzeichnis hin).
Der zu Beginn der ersten Neuordnung der Metallberufe 1989/90 in NW eingeführte Begriff Lernträger[3] in Verbindung mit der Metapher „Neues Denken“ hat seine Berechtigung und trifft hier zu: Wenn dem Anfänger technische Objekte der allgemeinen oder der technischen Umwelt in Verbindung mit ihren Zeichnungen zur Verfügung stehen, wird neues Lernen initiiert, insbesondere durch die Konzeption der Mehrfachkodierung. Dazu gehören z. B. das Objekt als Ganzes oder in Einzelteilen, zeichnerische Darstellungen, Stücklisten und gut formulierte Textaufgaben. Die Grundidee wurde in der NDR-Fernsehreihe „Geometrie und Technisches Zeichnen“ geboren – realisiert mit einer Hebelpresse als herkömmliches Prüfungsstück der Facharbeiterprüfung (vgl. DIEKMANN 1975). Schülerinnen und Schüler der 9. Klassen einer Hauptschule waren in der Pilotphase hoch motiviert, als sie nach der erfolgten Montage eine größere Zahl von Aufgaben in technischen Zeichnungen lösen konnten. Darin wurden sprachliche, fachsprachliche und grafische Kommunikation integriert, was mit geeigneten Aufgaben unter Verwendung von Farben schrittweise zu einem guten Gesamtergebnis führte. Das oben beschriebene Beispiel Kastenschloss endete mit folgendem Ergebnis: Schüler tragen Pfeile für Bewegungsart und -richtung in die Zeichnung ein und erschließen sich langfristig Grundelemente der Schemazeichnung. Das führt aus konstruktivistischer Perspektive über weitere Beispiele fächerübergreifend – Vektor-Pfeile sind ein Prinzip der Physik – zu einem eigenen Konstrukt. Diese und andere ausgewählte Aufgabentypen gehören zum Konzept einer individuellen Methode im Zeichnungslesen und dienen heute dem Einzelnen als „mentales Werkzeug“, indem Technikverstehen aus Raumvorstellung und Funktionsverständnis zu einer höheren Ebene emergiert. Eine Sammlung entsprechender Aufgabentypen liegt vor (DIEKMANN 2006, 41).
Das Anfertigen von Technischen Zeichnungen - ob auf Papier oder am Bildschirm - gehört für den heutigen technischen Designer – bisher Technischer Zeichner/Technisch Zeichnerin – zur Ausbildung. In der Mehrzahl technischer Berufe liegt aber der Schwerpunkt auf dem Lesen und Verstehen technischer Zeichnungen. Irrtümlicherweise ging man jahrzehntelang davon aus „Wer technische Zeichnungen anfertigen kann, kann auch Zeichnungen lesen“, ohne zu bedenken, das Zeichnungen, die ein Schüler anfertigen kann, nur sehr einfach und zugleich so zeitraubend sind, dass das eigentliche Berufsziel verfehlt wird. Ein trauriges Ergebnis für unsere Berufsschulen aus jüngster Zeit: nach Abschluss einer neu eingeführten gestuften Prüfung war der Kommentar von Prüflingen: „Wir konnten nicht Zeichnung lesen“. Kurz gesagt: Das kann nicht das Ergebnis einer langjährigen Ausbildung sein.
Nicht mehr zu akzeptieren ist in der TK eine starke didaktische Reduktion: Wird sie auf komplexe Zeichnungen angewandt, ist sie lediglich eine abstrahierende Reduktion, die eine Auseinandersetzung mir realer Technik eher behindert als fördert. In der Berufspraxis werden zu Arbeitsbeginn auch nicht die Zeichnungen von einer Lehrperson ‚reduziert’. Umfangreiche didaktische Reduktion lässt sich hier nicht mehr rechtfertigen, weil im heutigen Unterricht Umgang mit Komplexität als neue Problemsicht anerkannt ist. Angebracht ist in der Ausbildung dagegen die didaktische Konstruktion als ein vom Schüler selbst in Lernprozessen geschaffenes und gefestigtes Wissen, das nur über Zeichnungen der Berufspraxis zu erwerben ist, wie es dem konstruktivistischen Paradigma entspricht.
Eine weitere Fehlorientierung ist das Multiple-Choice-Format, bei dem verlangt wird, richtige Lösungen von fehlerhaften und oft praxisfernen Alternativen (Distraktoren) zu trennen. Dabei wird fast alles ignoriert, was heute über die Verarbeitung im menschlichen Gehirn und über seine Architektur bekannt ist, denn es ist abwegig, dass sich ein Gehirn ständig mit den Falschaussagen einer Rate-Praxis beschäftigt, anstatt auf beruflich relevante Anwendungen zu zielen. Gegen die Multiple-Choice-Aufgaben spricht vor allem ihr einschränkendes Grundprinzip, das sich in dem „trivialen Lernziel Wiedererkennen und Ankreuzen als unterstes Lernzielniveau, ohne erforderliche Lernleistungen zu berücksichtigen“ ausdrückt. Zu diesen falschen und uneffektiven Wegen, die angeblich zum Zeichnungslesen führen, gibt es erprobte und anerkannte Alternativen:
Die plausible Annahme, dass das Lesen in erster Linie durch Lesen entwickelt und gefördert wird, lässt sich auf die TK übertragen: Zeichnungslesen lernt man durch Zeichnungslesen. Ein Beispiel aus einer Vielzahl neuer Aufgabentypen ist, in einer Tabelle anzukreuzen, in welcher Ansicht jedes Einzelteil berücksichtigt ist und ob ein Bauteil als fest oder beweglich in seiner Umgebung erkannt wird. Lösungen sind hier nur als Folge vieler Denkschritte möglich. Mit entsprechenden Methoden lassen sich schnell und zugleich intensiv Gesamtzeichnungen analysieren und verstehen. Als ein ausgezeichneter Aufgabentyp kann auch gelten, in welchem bestimmt wird, wie Form und Gegenform zur Funktion zusammen wirken (Tab. 2). Das beginnt damit, dass weitere Ansichten und Schnitte analysiert werden. So wird der Zweck der Hauptbauteile technischer Objekte direkt und auf neuen Wegen durchdacht und verstanden. Solche Überlegungen lassen sich überprüfen, wenn sie in Stichworten formuliert und wenn die Lösungen diskutiert werden. (Beispiele in DIEKMANN 2000).
Tabelle 2: Teilformen und Funktionen an der Säulenbohrmaschine (DIEKMANN 1996b, 239)
Umfangreiche Literatur im Umfeld der Hirnforschung regt auch in der Fachdidaktik zu neuen Überlegungen an: Für die TK arbeitet der Autor an einem Glossar, in dem er versucht, eine Konzeption der TK mit Ergebnissen der HF zu verbinden (unveröffentlichtes Manuskript 2011).
Im vorliegenden Beitrag sind bereits einige Gedanken der Hirnforschung implizit enthalten. Drei Einzelpunkte werden in den folgenden Abschnitten herausgegriffen: Die Bedeutung des Sehens, der sinnvolle Einsatz von Farben in der TK und der Priming-Effekt. In einem weiteren Abschnitt werden zentrale Aspekte der sprachlichen Vermittlung und Vertiefung in der TK thematisiert.
Wie schon erwähnt: Zeichnungslesen lernt man durch Zeichnungslesen! Warum? ‑ Sehen hat von den Sinnesqualitäten die mit Abstand größte Bedeutung. Das visuelle System ist die Hauptvermittlungsinstanz zwischen Wahrnehmen und Denken. Für die Verarbeitung von optischen Eingangssignalen sind im Gehirn mehr als 30 Areale zuständig. Erst in weiteren Verzweigungen gelangen die Informationen in alle übrigen Areale wie die für Sprache, räumliche Vorstellung, Hintergrundwissen usw., selbst Zahlen und Buchstaben werden in eigene Areale gespeichert. Dies alles ist nur möglich, weil das menschliche Gehirn über mehr als 100 Mrd. Nervenzellen (Neuronen) verfügt, hinzu kommt eine noch weit größere Zahl von Verbindungen (Axone) zwischen ihnen. Deshalb rangiert auch das Lesen und Verstehen von technischen Zeichnungen deutlich vor dem Anfertigen. Sprechen und Zeichnen sind sequentielle Vorgänge, Sehen dagegen verläuft vom Sehzentrum V1[4] ausgehend wie jede neuronale Parallelverarbeitung simultan und ermöglicht im technischen Beruf die Fähigkeit, Komplexität aufzulösen. Das erfordert auch neue Wege zur Vorbereitung auf CAD, weil für das Zeichnungslesen auch die Plastizität neuronaler Karten als ein Ensemble eine Rolle spielt. Je öfter Sehen und Sprechen gleichzeitig an der Auflösung von Komplexität beteiligt sind, umso mehr verstärken sich die Axone, welche die Neurone verbinden und fachliche und kommunikative Fähigkeiten dauerhaft speichern. Vor diesem Hintergrund ist die bereits genannte These zum Zeichnungslesen als eine aktive und umfassende mentale Handlung aus konstruktivistischer Perspektive einleuchtend. Ergänzend sind kleine Zeichen- und Skizzierübungen verstärkend einzusetzen, was in jeder Lernsituation unterschiedlich gehandhabt werden kann.
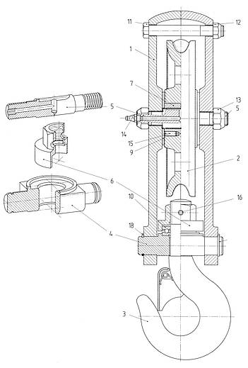
Zu den vielen Möglichkeiten, die TK effektiver zu gestalten gehört auch die aktive Farbkodierung durch den Lernenden, was in unterschiedlichen Fächern, Schularten und -stufen bereits realisiert ist. Farben sind Informationen. Ihre Anwendungen als Informations- Verbesserung in technischen Unterlagen aller Art ist seit langem üblich (vgl. WELSCH/ LIEBMANN 2004, 345). Jeder Aufsichtsrat lässt sich durch farblich gestaltete Hochglanzbroschüren informieren, warum sollten wir nicht auch mit Farben Lernprozesse unserer Jugendlichen verwenden? Nach Erkenntnissen der Hirnforschung verbessert die aktive Verwendung von Farben auch den Lernerfolg beim Zeichnungslesen. Farben gehören zur Mehrfachkodierung und fördern sowohl das Verstehen als mentaler Akt als auch die Verständlichkeit als Eigenschaft der Darstellung. Weil die Segmentierung im Hirn dem Erkennungsprozess vorausgehen muss, machen neue Aufgabentypen mit dem Einsatz von Farben einen Sinn. So werden durch farbliche Kennzeichnung eines Bauteils Konturen und Grenzen zur Umgebung hervorgehoben; so wird das Einzelteil zur zentralen Figur, wenn es in allen Ansichten und Schnitten einer Gesamtzeichnung farblich bestimmt wird. Ein Beispiel ist die abgebildete Unterflasche, sie wurde von einem 16 jährigen Schüler ohne Schulabschluss farblich gestaltet (Abb.6). Solche Aktivitäten erfordern eine Vielzahl von miteinander vernetzten Denkschritten und haben sich seit Jahren im Unterricht bewährt. – selbst in Industriemeisterkursen gab es viele Aha-Effekte. Die Auflösung der Komplexität in technischen Zeichnungen war übrigens vor 100 Jahren leichter, weil fast alle Zeichnungen koloriert wurden (Folgende Zeichnung ist in Farbe beim Autor erhältlich: Eine Dampf-Lokomotive im Schnitt, Hyde Park Loco Works, 1899, Clascow).
Seit dem Aufkommen der Blaupause/blue print reading, als Methode des Zeichnunglesens um 1941 in den USA entwickelt, gibt es vorwiegend einfarbige Zeichnungen. Anwendungen aus laufenden Unterrichtskonzepten geben weitere Hinweise, Farben im Unterricht anzuwenden: Form und Lage von Bauteilen in Ansichten und Schnitten werden erarbeitet, Höhenlagen von Details verdeutlichen Tiefenstruktur in nur zweidimensional dargestellten Ansichten, Grenzen zwischen festen und beweglichen oder bewegten Bauteilen werden erkennbar, die Schmiermittelzufuhr sowie pneumatische Antriebe oder Bremsflüssigkeiten in ihren Hohlräumen können analysiert und verstanden werden.
Abb. 4: Mehrfachkodierung zur Unterflasche im Schnitt
(Diekmann 1998, 22)
Im Gehirn werden nicht einfach Erfahrungen passiv aufgenommen und strukturiert, sondern das Gehirn sucht aktiv nach Erfahrungen, die den meisten Sinn machen und strukturiert sich damit selbst. Wahrnehmung läuft hierbei ohne bewusstes Reflektieren ab, trotzdem werden die wahrgenommenen Inhalte bei Wiederholung aktiviert. Dieser Effekt wird bestätigt, wenn viele sinnvolle Beispiele durchgearbeitet werden. Priming verstärkt das Basiswissen auch für das Technische Zeichnen durch unbewusstes Einprägen von Grundregeln über das Zeichnungslesen, z. B. beim „Segmentieren“ - wie der Hirnforscher sagt - den Sinn von Schraffuren ohne Nachzudenken zu erfassen und anzuwenden wie die Schnittzeichnung vom Zylinderschloss (Abb. 5) zeigt. Durch das Priming werden viele Zeichennormen wie Linienarten und -breite, Schraffuren, Maßeintragungen usw. quasi nebenbei aufgenommen und verwendet. Das gilt auch für Art und Einsatz vieler Normteile und besonders typischen Einzelteilen. Das Priming hilft, wenn Komplexität aufzulösen ist, weil konstruktivistisches Denken und mentale Aktivitäten beim Erkennen und Verstehen interagieren.
Abb. 5: Zylinderschloss im Schnitt (DIEKMANN 1996a, 48)
In den seit langem bekannten Arealen der beiden Sprachzentren des Gehirns werden Begriffe und Zusammenhänge sprachlich erzeugt bzw. dekodiert. Ein neuronales Netz überspannt alle jeweils aktiven Karten des Gehirns, die beim Zeichnungslesen sprachliche Grundlagen vertiefen und Kommunikation ermöglichen. Handwerkliche und geistige Arbeiten brauchen Sprache. Die Technische Kommunikation sollte deshalb auch Aspekte der Deutschen Sprache beim Zeichnungslesen im Umgang mit Technik, Physik und Mathematik vermitteln, soweit sie nach heutigen Ansätzen sinnvoll sind und hier „passen“. Das betrifft nicht nur ‚Besprechungen’ anhand einer Zeichnung, sondern auch Inhalte und Normen, weil sie auf sprachlichen Konventionen beruhen.
Viele Begriffe der Technik kommen übrigens aus der Natur, dem Bereich der Lebewesen oder der Landwirtschaft wie Auge, Klaue, Maus, Rippe (60 Begriffe in DIEKMANN 1998, 16 ff.). Werden diese Begriffe in der TK anhand von Zeichnungen erklärt und über kleine Zuordnungsaufgaben angewandt, sind die getrennten Areale von Technik und Sprache in einem überspannenden Netz mental verbunden; hier wird wieder paralleles und lineares Denken gleichzeitig verlangt.
Auch verfügt jeder Mensch in seinem Sprachgebrauch über einen geringeren aktiven und einen weitaus umfangreicheren passiven Wortschatz. Beides ist im „Persönlichen Lexikon“ gespeichert.
Der passive Wort- und Wissensschatz wird in Schule und Ausbildung noch zu wenig berücksichtigt. Zu seinem weiteren Aufbau und zur Vertiefung trägt in der TK auch das Priming bei. In der Berufsausbildung sowie in den Übergangsprozessen kommt es heute darauf an, dass der sprachlose Unterricht am Bildschirm durch sprachliche Vermittlung in der TK ergänzt wird, weil sich der passive Wortschatz über das Zeichnungslesen zum aktiven Wortschatz weiter entwickeln kann. Das gilt verstärkt für Schüler mit Migrationshintergrund.
Zum passiven Wort- und Wissensschatz gibt es eine Analogie: Jeder hat sowohl ein aktives als auch ein passives Technikwissen. Das Zeichnungslesen mit hinreichend komplexen Beispielen hilft, das passive Technikwissen zu aktualisieren und bekannte Begriffe und Zusammenhänge aufzufrischen, es ermöglicht aber auch, Neues mit Bekanntem zu verknüpfen oder Bekanntes zu vertiefen (vgl. VESTER 1984). Dabei dient das visuelle Arbeitsgedächtnis dem kurzfristigen Agieren: Beim Zeichnungslesen stellt es durch den ständigen Wechsel zwischen den Ansichten und der Stückliste als simultaner Vorgang höhere Anforderungen gegenüber dem reinen Text, der nur sequenziell aufgebaut ist: (Bei einer technischen Zeichnung hat man sofort „das Ganze im Blick“). Dies ist ein weiterer Grund, in der TK komplexe Zeichnungen einzusetzen, in denen sprachliche, fachsprachliche und zeichnerische Elemente mit Hilfe der Mehrfachkodierung zu erkennen und aufzulösen sind.
Der Beitrag sollte zeigen, dass TK als „Fachsprache“ und für das Orientierungswissen für lebenslanges Lernen eine übergreifende und nachhaltige Rolle spielen. Die Vernetzung der Denkakte beim Zeichnungslesen wird deutlich, wenn sich Aufforderungscharakter und höhere Komplexität der Zeichnungen ergänzen, was sicher auch in 9. und 10. Klassen sinnvoll erscheint. Bestätigt wurde in diesem Zusammenhang die These „Mehr Denken – mehr Sprechen – weniger Zeichnen“. In langjähriger Erprobung hat sich die Verbindung didaktischer Komponenten als sinnvoll erwiesen; sie sind in der Matrix Tab. 3 für die Lernplanung zusammengestellt.
Tabelle 3: Teilformen und Funktionen an der Säulenbohrmaschine (DIEKMANN 1996b, 239)
Auch die Arbeit am Computer kann sich ändern, wenn man den Umgang mit technischen Problemlösungen an den Anfang stellt. Zeichnungslesen statt zeichnen heißt: Auch die bisher vernachlässigten Areale des Sehens im Gehirn können mehr als bisher zum Ausbildungserfolg beitragen, wenn sprachliche und bildhafte Darstellung auf angemessenem Niveau umgesetzt werden. Vor allem aber ist in der TK technisches Wissen so zu vermitteln, dass alle Schüler angeregt werden, über eine Ausbildung in einem Technischen Beruf nachzudenken. Diese und weitere Maßnahmen können dazu beitragen, Übergänge zwischen allgemeinbildenden und beruflichen Schulen zu verbessern und Entscheidungen für berufliche Perspektiven zu erleichtern. Das didaktische Konzept zur TK ist inzwischen auch im Ausland „angekommen“. Was seit Jahren in Ländern Ostasiens und auch in Südafrika verwendet wird, könnte sich auch hierzulande bewähren (vgl. DIEKMANN 1985).
Woher nimmt man die Zeichnungen und die zugehörige Technik für die Unterrichtsgestaltung? Die Zeichnungen können aus den angegebenen Quellen kopiert werden. An vielen Schulen besteht das Hauptproblem für die TK aber darin, geeignete Technik zu beschaffen. Für die hier angesprochenen Beispiele hat sich an der ehemaligen Schule des Autors Folgendes bewährt:
Funktionstüchtige technische Kleingeräte wie die Kulissenführung wurden als halber Klassensatz von Firmen der Metalltechnik im Stadtteil gespendet. Hier zahlte sich der gute Kontakt zu Firmen aus, in denen die Schüler ihr Praktikum absolvierten. Nach Zeichnungen aus früheren Facharbeiterprüfungen wurden die Geräte als Zwischenprüfungsstück in verschiedenen Ausbildungswerkstätten gefertigt und auch als Übungsmöglichkeit und Prüfungsvorbereitung von den Auszubildenden hergestellt.
BERTELSMANNSTIFTUNG (2011): Jugendliche ohne Ausbildung - teuer für die Gesellschaft. Online: http://www.bertelsmann-stiftung.de/cps/rde/xchg/bst/hs.xsl/nachrichten_106530.htm (03-11-2011).
DATSCH – DEUTSCHER AUSSCHUSS FÜR DAS TECHNISCHE SCHULWESEN (1911): Abhandlungen u. Berichte über technisches Schulwesen, Bd. II. Leipzig und Berlin, 133.
DIEKMANN, H. (1975): Drehbuch zur NDR - Sendereihe ‚Geometrie und Technisches Zeichnen’. Hamburg, unter Mitarbeit von J. Timm.
DIEKMANN, H. (1983): Didaktisches Konzept zum Lehrbuch „Lesen und Verstehen Technischer Zeichnungen“. Hamburg.
DIEKMANN, H. (1985): Technical Drawing - Aspects of a didactical Concept, Pietermaritzburg SA .
DIEKMANN, H. (1996a,): „Instandsetzung einer Säulenbohrmaschine“. In Pahl, J.-P. (Hrsg.): Lernbereich Instandhaltung. Beiträge aus Berufsfeldwissenschaft, Beruflicher Didaktik und Fachmethodik. Dresden. 229- 240.
DIEKMANN, H. (1996b): Technische Kommunikation für Metallberufe. Grundbildung. Bad Homburg v. d. Höhe.
DIEKMANN, H. (1999): Konstruktivistisches Denken und Handeln im Lernbereich Technische Kommunikation. In: berufsbildung. Heft 55, 29-32.
DIEKMANN, H. (2000): Technische Kommunikation für Kraftfahrzeugtechnik. Bd 1, Bad Homburg v. d. Höhe.
DIEKMANN, H. (2006): Technische Kommunikation als lernfeldübergreifendes Konzept. In: lernen & lehren Sonderheft 2. 34-43.
DIEKMANN, H. (2010): 30 Jahre Technische Kommunikation – Wo stehen wir heute? In: lernen & lehren, Heft 99. 114-120
DIEKMANN, H. , BEIER, J. , JIRITSCHKA, M. (1998): Technische Kommunikation für Metallberufe, Fachbildung, Bad Homburg v. d. Höhe.
GASSEN, H. G. (2008): Das Gehirn. Darmstadt.
HERKNER, V./ MERSCH, F. F./ PAHL J.-P. (2010): Lernkonzepte zur Instandhaltung. Dresden.
SPITZER, M. (2004): Selbstbestimmen. Heidelberg.
SPITZER, M. (2006): Lernen: Gehirnforschung und die Schule des Lebens. Heidelberg.
StatBA – STATISTISCHES BUNDESAMT DEUTSCHLAND (2011): Arbeitsmarkt. Online: http://www.destatis.de/jetspeed/portal/cms/Sites/destatis/Internet/DE/Content/Statistiken/Zeitreihen/WirtschaftAktuell/Schluesselindikatoren/OffeneStellen/liste__offstel,templateId=renderPrint.psml (03-11-2011).
VESTER, F. (1984): Neuland des Denkens. München.
WELSCH, N./ LIEBMANN, C. C. (2004): Farben. Natur-Technik-Kunst. München.
AEBLI, H. (1981): Denken – Ordnen des Tuns. Bd. 2, Stuttgart.
CRICK, F. (1997): Die naturwissenschaftliche Erforschung des Bewusstseins. Reinbek.
CROISILE, B. (2011): Unser Gedächtnis. Lyon.
DIEKMANN, H. (1980): Prinzipien eines Unterrichtsfaches technisches Zeichnen/ technische Kommunikation. In: „Berufliche Bildung und Lehrerbildung im Berufsfeld Metalltechnik“. Hochschultage Berufliche Bildung. Bremen.
MARKOWITCH, H-J. (2005): Dem Gedächtnis auf der Spur. Darmstadt.
SINGER, W. (2002): Der Beobachter im Gehirn. Frankfurt a. M.
SINGER, W. (2003): Ein neues Menschenbild. Frankfurt a. M.
[1] Beeinflussung der Verarbeitung eines Reizes dadurch, dass ein vorangegangener Reiz implizite Gedächtnisinhalte aktiviert hat
[2] Vorlagen und Konzepte stellt der Autor interessierten Kolleginnen und Kollegen zur Verfügung.
[4] Der visuelle Cortex (auch Sehrinde) ist derjenige Teil der Großhirnrinde, der zum visuellen System zählt, welches wiederum die visuelle Wahrnehmung ermöglicht. Der visuelle Cortex nimmt den Großteil des Occipitallappens des Gehirns ein. Nach der Hirnkarte von Korbinian Brodmann entsprechen ihm die Areale 17, 18 und 19. Er wird in die primäre Sehrinde (V1) und sekundäre bzw. tertiäre (assoziative, V2–V5) Bereiche unterteilt. Histologisch zeichnet ihn bei Primaten die hohe Zelldichte und die vergleichsweise geringe Dicke (beim Mensch 1,5–2 mm) aus. (WIKIPEDIA)
DIEKMANN, H. (2011): Technische Kommunikation in der Metalltechnik als Vorbereitung auf die Berufswahl. In: bwp@ Spezial 5 – Hochschultage Berufliche Bildung 2011, Fachtagung 08.1/2, hrsg. v. SCHWENGER, U./ HOWE, F./ VOLLMER, T./ HARTMANN, M./ REICHWEIN, W., 1-20. Online: http://www.bwpat.de/ht2011/ft08/diekmann_ft08-ht2011.pdf (19-11-2011).